Multilocale in vendita

Genova, Via Giuseppe Casaregis - Foce
€ 490.000
7 locali 7 locali
183 Mq 183 Mq
2 bagni 2 bagni

Multilocale in vendita

Genova, Via Giuseppe Casaregis - Foce

Descrizione annuncio

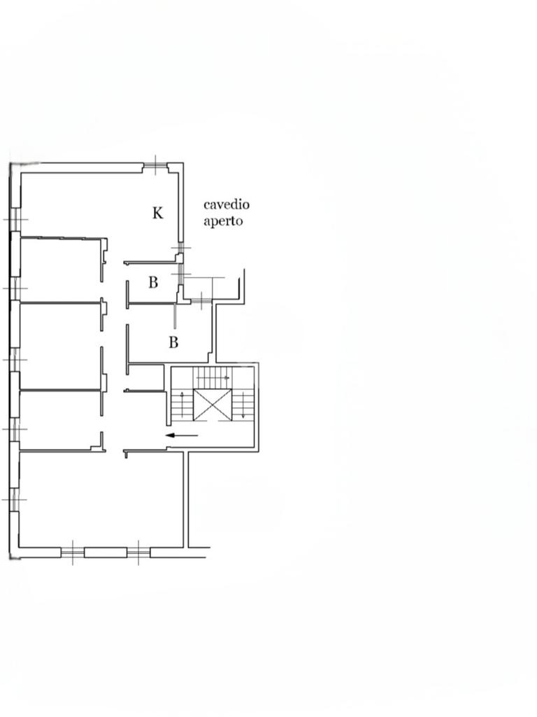
Via Casaregis, proponiamo appartamento ristrutturato di 8,5 vani per 183 mq con terrazzino, in palazzo signorile, dotato di ascensore, così composto;

ampio ingresso, salone doppio, una camera matrimoniale, due camere, ampia cucina , doppi servizi, terrazzino e dispensa

L'appartamento è stato oggetto di una completa ristrutturazione, impianto elettrico, impianto idraulico, infissi in doppio vetro con taglio termico, ed è dotato di impianto di condizionamento aria calda/fredda.

Ci troviamo nella parte del quartiere di Foce, più vicina a Genova Brignole, comodissima a tutti i mezzi e servizi che la zona ha da offrire, a pochi passi da Via XX Settembre, dalla stazione ferroviaria e dal ospedale San Martino e Corso Italia.

L'immobile è dotato di riscaldamento centralizzato comprensivo di acqua calda e fredda.

DEVI VENDERE O AFFITTARE CASA E VUOI SCOPRIRNE IL VALORE ATTUALE DI MERCATO ?

CONTATTACI AL 3493515421 / 0105701906 O INVIACI UN' EMAIL A;

PER UNA CONSULENZA GRATUITA E SENZA IMPEGNO

Mostra tutto

Nelle vicinanze

Trasporto pubblico Trasporto pubblico
Brignole
Brignole
740 m
De Ferrari
De Ferrari
1,5 Km
stazione di Genova Brignole
stazione di Genova Brignole
740 m
Genova Piazza Manin
Genova Piazza Manin
1,6 Km
Trasporto pubblico
120 m
Ricariche auto elettriche Ricariche auto elettriche
Genova Trebisonda | EnelX
160 m
Eneldrive Paolo da Novi
230 m
Genova Tommaseo | EnelX
320 m
Rental Plus Genova | EnelX
320 m
Genova Antiochia | EnelX
410 m
Scuole Scuole
Scuola Elementare A. G. Barrili
200 m
Scuola Media statale D'Oria - Pascoli
310 m
Scuole Diaz
510 m
Liceo Statale Sandro Pertini
530 m
Accademia italiana della marina mercantile
610 m
Farmacia Farmacia
Farmacia Genovese
60 m
Parafarmacia Le erbe di Matì
120 m
Farmacia Barabino
120 m
Farmacia Croce Bianca
160 m
Farmacia Majonchi
170 m
Ospedali Ospedali
Ospedale Galliera
770 m
Clinica Villa Serena
870 m
Casa di Cura Villa Montallegro
1,2 Km
Ospedale Evangelico Internazionale
1,6 Km
ospedale San Martino
2,0 Km
Supermercati Supermercati
Gailli
10 m
Basko
180 m
Carrefour Express
290 m
Supermercato Issimo
350 m
Ekom
420 m
Negozi Negozi
Negozi
200 m
Benetton baby
230 m
Sara Moda Abbigliamento
260 m
Pizza Sbrano
260 m
Girotondo
310 m
Bar Bar
Poldo's Bar
10 m
Caffè Savonarola
100 m
Bar Caffetteria No Name
130 m
Bar 74
160 m
Bar Gelateria 010
160 m
Ristoranti Ristoranti
Ö Beccu Fin
40 m
Pingusto Wok
50 m
Campanella, caffè cibo e vino
120 m
Ristorante Pizzeria La Bufalina
150 m
Ristorante Drago d'Oro
160 m
Mostra tutto

Caratteristiche

Rif.:
61145530
Piano:
2 di 6 con ascensore (Piano basso)
Terrazzi:
1
Camere da letto:
3
Arredamento:
Assente
Condizionamento:
Autonomo
Mostra tutto
Prezzo Prezzo
€ 490.000
Rata mutuo Rata mutuo
€ 2.310 / mese
Spese annue Spese annue
€ 2.400
Proponi il tuo prezzoProponi il tuo prezzo

Classe Energetica

G
G
G
G
G
G
G
G
G
EP invernale del fabbricato:
EP estiva del fabbricato:
Anno di costruzione:
1950
Riscaldamento:
Centralizzato
Tipo impianto:
A radiatori
Tipo alimentazione:
Metano

Ti interessa visionare l'immobile?

Fissa un appuntamento  Fissa un appuntamento

Richiedi informazioni

Clicca su Leggi per aprire l'informativa
* Questi campi sono obbligatori

Calcola il tuo mutuo

Semplice e senza impegno
Anticipo

( % )
Mutuo

( % )

pochi semplici passi

inserisci i tuoi dati
Questionario completato
Grazie per aver richiesto un appuntamento senza impegno con un nostro Consulente del Credito e Assicurativo.

Hai inserito correttamente tutti i dati necessari e a breve riceverai una e-mail con un link da convalidare per inviare i tuoi dati.
Affiliato
Studio Foce Srl
Corso Buenos Aires, 92R 16129 Genova (GE)

Il nostro staff


  • Manuel Ustulin
    Affiliato
Corso Buenos Aires, 92R 16129 Genova (GE)
Zona: Genova-Foce
Mostra su mappa
Orari: Lunedì - Venerdì 09 - 19,30 Sabato 09 - 17,00
Affiliato
Studio Foce Srl
Corso Buenos Aires, 92R 16129 Genova (GE)

2026 Tecnocasa Franchising S.p.A. - P. IVA 08365160152 - Via Monte Bianco 60/A 20089 Rozzano (MI). Ogni agenzia ha un proprio titolare ed è autonoma. Privacy policy | Policy utilizzo | Cookie policy