6 locali in vendita

Genova, Via Nicola Fabrizi - Quarto Dei Mille
€ 690.000
7 locali 7 locali
176 Mq 176 Mq
2 bagni 2 bagni

6 locali in vendita

Genova, Via Nicola Fabrizi - Quarto Dei Mille

Descrizione annuncio

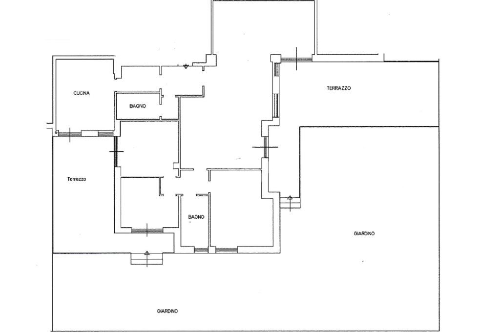
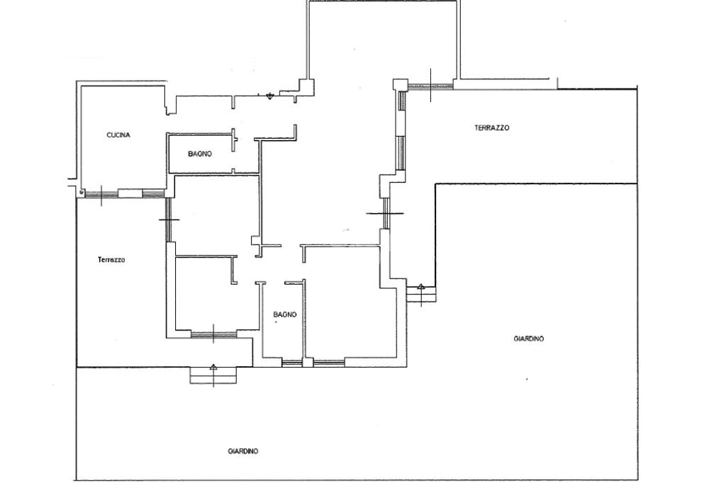
Quarto dei Mille, proponiamo prestigioso appartamento in Via Fabrizi composto da 9 vani per 176 mq immersi totalmente nel verde. La proprietà comprende oltre l'appartamento, due ampi terrazzi al piano, un vasto giardino privato di circa 300 mq, due Box auto adiacenti la casa e una cantina. L' immobile è stato totalmente ristrutturato con materiali di pregio, la zona giorno e la zona notte sono ben suddivise e così composte;

nella zona giorno troviamo l'ingresso, l'ampio salone di rappresentanza adiacente alla sala da pranzo, la cucina abitabile e un bagno con box doccia. Proseguendo nella zona notte troviamo la camera da letto matrimoniale, ulteriori due camere da letto ed il bagno servito da un box doccia. Tramite le porte finestre presenti in quasi ogni vano dell'appartamento si può accedere ai due ampi terrazzi ed al magnifico giardino. La proprietà comprende una comoda cantina ubicata nei piani fondi del condominio e due Box auto adiacenti all'immobile, uno di 14 mq e l'altro di 21 mq serviti entrambi da acqua e saracinesche elettriche con telecomandi.

Il riscaldamento della casa è centralizzato con contabilizzatori e termovalvole, il giardino è servito da una fontanella, dall' illuminazione e da un impianto di irrigazione automatizzata, è presente l'impianto di allarme, l'impianto di condizionamento, le tapparelle sono tutte elettriche, le finestre e le porte finestre sono doppio vetro con isolante, la porta è blindata e l'acqua calda è autonoma con scaldabagno.


L’appartamento è raggiungibile tramite Via Fabrizi, Via Romana della Castagna o Via Cottolengo. La proprietà dispone di due Box ad uso esclusivo, compresi nella cifra di vendita come già anticipato.

L'immobile in vendita si distingue per il suo stile classico ed elegante, con dettagli architettonici unici e di pregio. Le facciate sono in buono stato e valorizzano l'immobile, mentre gli interni presentano soluzioni raffinate, quali: ampie finestre e porte finestre che permettono di illuminare in modo naturale tutti gli ambienti e di ammirare l'ampio giardino curato finemente. I pavimenti sono principalmente in parquet, che concorre a creare un' atmosfera accogliente e calda in tutta la casa, tranne che nella cucina, dove troviamo un pavimento in cotto che si sposa benissimo con lo stile e l'ambiente della cucina stessa.

L'immobile è situato in un contesto di quiete assoluta ed è immerso completamente nel verde, godendo di un'ottima luminosità grazie alla sua esposizione.

Ci troviamo nel quartiere signorile genovese di Quarto dei Mille, fornito da svariati servizi ed attività commerciali, ubicato a cinque minuti dalla stazione ferroviaria di Genova Quarto dei Mille e a due passi dal mare.

Categoria catastale A/2

DEVI CAMBIARE, VENDERE O AFFITTARE CASA E VUOI SCOPRIRNE IL VALORE ATTUALE DI MERCATO?

PER UNA CONSULENZA GRATUITA E SENZA IMPEGNO CONTATTACI AL 3497788907 o 0105701906

Mostra tutto

Nelle vicinanze

Trasporto pubblico Trasporto pubblico
stazione di Genova Quarto
stazione di Genova Quarto
1,0 Km
stazione di Genova Quinto al Mare
stazione di Genova Quinto al Mare
1,2 Km
Europa 12 / Togliatti
Europa 12 / Togliatti
170 m
Europa 6 / Togliatti
Europa 6 / Togliatti
190 m
Ricariche auto elettriche Ricariche auto elettriche
Genova Europa 1081 | EnelX
670 m
Genova Genziane | EnelX
1,0 Km
Genova Stazione Quarto dei Mille | Enelx
1,1 Km
Genova Cattanei | EnelX
1,5 Km
Istituto Giannina Gaslini
1,6 Km
Scuole Scuole
scuola Fabrizi
50 m
Scuola d'Infanzia e scuola primaria Suore Domenicane
320 m
Scuola Elementare Angelo Gianelli
650 m
Scuola Media Clelia Durazzo
770 m
Scuola Elementare statale Carlo Palli
940 m
Farmacia Farmacia
Farmacia Ribaldone
580 m
Farmacia Comunale Quinto
650 m
Farmacia Quarto dei Mille
680 m
Parafarmacia Erboristeria Dottoressa Mara
830 m
Farmacia Centrale
890 m
Ospedali Ospedali
Ospedale Pediatrico Giannina Gaslini
1,6 Km
Istituto Scientifico di Nervi
1,9 Km
Supermercati Supermercati
Carrefour Express
140 m
Dico
570 m
Carrefour express via Quinto
650 m
Coop
660 m
Metà
720 m
Negozi Negozi
l'Arte del Pane
1,1 Km
Guido
1,3 Km
Negozi
1,4 Km
Panificio Dolce Vita
1,6 Km
Panificio Spiga d'oro
1,7 Km
Bar Bar
Peter Pan
610 m
Bar La bitta
670 m
Gelateria Priaruggia
900 m
Quinto Cafè
910 m
Monu Cafe
1,2 Km
Ristoranti Ristoranti
Gigino
120 m
Antica Osteria della Castagna
600 m
Turna u Poli
610 m
Antica Osteria del Bai
610 m
olivè
650 m
Mostra tutto

Caratteristiche

Rif.:
61110856
Piano:
Terra con giardino di 5 con ascensore
Totale piani:
5
Box:
2
Terrazzi:
1
Camere da letto:
3
Mostra tutto
Prezzo Prezzo
€ 690.000
Rata mutuo Rata mutuo
€ 3.189 / mese
Spese annue Spese annue
€ 4.500
Proponi il tuo prezzoProponi il tuo prezzo

Classe Energetica

F
F
F
F
F
F
F
F
F
EP invernale del fabbricato:
EP estiva del fabbricato:
Anno di costruzione:
1960
Riscaldamento:
Centralizzato
Tipo impianto:
A radiatori
Tipo alimentazione:
Metano

Ti interessa visionare l'immobile?

Fissa un appuntamento  Fissa un appuntamento

Richiedi informazioni

* Questi campi sono obbligatori

Calcola il tuo mutuo

Semplice e senza impegno
Anticipo

( % )
Mutuo

( % )

pochi semplici passi

inserisci i tuoi dati
Questionario completato
Grazie per aver richiesto un appuntamento senza impegno con un nostro Consulente del Credito e Assicurativo.

Hai inserito correttamente tutti i dati necessari e a breve riceverai una e-mail con un link da convalidare per inviare i tuoi dati.
Affiliato
Studio Foce Srl
Corso Buenos Aires, 92R 16129 Genova (GE)

Il nostro staff


  • Manuel Ustulin
    Affiliato
Corso Buenos Aires, 92R 16129 Genova (GE)
Zona: Genova-Foce
Mostra su mappa
Orari: Lunedì - Venerdì 09 - 19,30 Sabato 09 - 17,00
Affiliato
Studio Foce Srl
Corso Buenos Aires, 92R 16129 Genova (GE)

2025 Tecnocasa Franchising S.p.A. - P. IVA 08365160152 - Via Monte Bianco 60/A 20089 Rozzano (MI). Ogni agenzia ha un proprio titolare ed è autonoma. Privacy policy | Policy utilizzo | Cookie policy